Options for expanding your office

When you’ve maximized your available space, there are a variety of ways TEAM DDS can help you expand your existing office space.

Repurposing/adjusting your current space

When you grow out of your existing space but the time isn’t right to move into a larger space - repurposing or adjusting your current space to fit your growth is what needs to happen. More photos of this office coming soon!

Expanding into an adjacent space

When you grow out of your existing space but the time isn’t right to move into a larger space - More photos of this office coming soon!

Building an addition

When finding the right location and almost the right space, sometimes building an addition is what it takes to get your perfect office. More photos of this office coming soon!

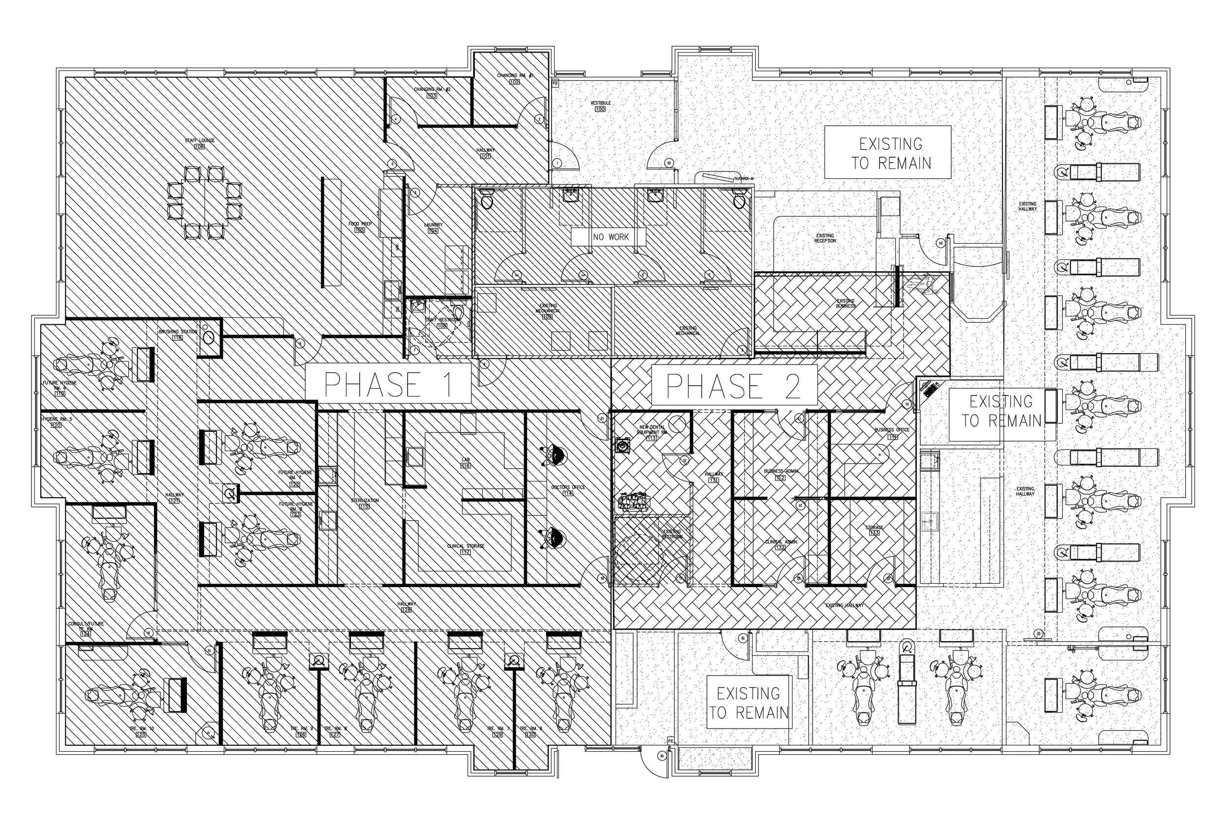
Phased expansion

With phased construction, your project is carefully planned and completed in phases, negating the need to disrupt daily operations. To see more photos of this office, click here!